Je sais que les plans de nos bon vieux bateaux que certain appel péniche d’autre Freycinet, personnellement je les nommerais ici automoteur, on peut aussi dire « automoteur au gabarit Freycinet » pour les non initier cela se rapporte à des valeurs moyenne de : 38,50 m de long 5,05 m de large 2,40 m de tirant d’eau, 4,80 m de hauteur hors tout sans le mât, le pavillon, les drapeaux bien sûr.
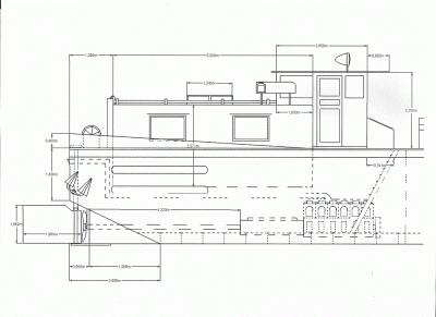
On me demande très souvent des plans mais pas facile a trouvé car pratiquement inexistant, J’ai donc pensé que les petit croquis que j’ai fait pourrais peut-être aider certain d’entre vous je n’ai pas la prétention d’avoir dessiné un plan non loin de moi cette idée, mais un croquis qui donne certaine côte et les mesures pour un plat bord, une cabine, une éveule avant, une hauteur de coque, une écoutille, les surfaces habitable a quelques centimètre carré ne change pas des masse d’un modèle à l’autre.
Ce qui change par contre ce sont les formes et là je ne peux hélas pas grand-chose pour vous car il faudrait dessiner le model type à condition d’avoir le relevé de côte.
Le plus important lors de la construction d’une maquette c’est la coque il faut se rapprocher aux maximum de la vérité dans l’image que le model renvoie pour un maquettiste le plus grand plaisir c’est de pouvoir dire « oui c’est la reproduction d’un model X construit au chantier Y année 19XX » après pour ce qui des équipements ils étaient bien souvent modulable lors de la commande.
Sur les croquis il n’y a pas toutes les côtes afin de ne pas surcharger mais si vous avez besoin d’une côte bien précise pas de problème y a qu’a demandé.
Il va de soi que j’ai dû réduire les schémas pour les mettre sur le forum j’espère que les côtes vont rester visible, dans le pire des cas pour les intéressaient je peux vous communiqué ces schémas par mail.



